MILTON, Del. — A developer is seeking approval to build a cluster subdivision of 187 single-family homes on the former site of Totem Farms along Cave Neck Road.
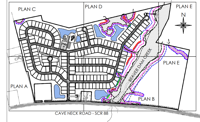
The proposed project would divide approximately 125 acres at 16300 King Cole Drive into 187 single-family lots. Plans are scheduled to go before the Sussex County Planning & Zoning Commission on March 4, 2026.
187 homes would be built on the 125 acre property.
According to county documents, the development would use a cluster design, which typically allows homes to be grouped together while preserving portions of open space. DelDOT documents submitted to the county classify the Rivers Edge subdivision as having only a minor traffic impact.
When reached via email by CoastTV News, the developer for the project declined to comment.
The project previously underwent a state Preliminary Land Use Review in 2024. In comments submitted at that time, David Edgell, director of the Office of State Planning Coordination, raised concerns about developing the rural site.
"From a fiscal responsibility perspective, development of this site is likewise inappropriate," Edgell wrote. "The cost of providing services to development in rural areas is an inefficient and wasteful use of the State’s fiscal resources. Over the longer term, the unseen negative ramifications of this development will become even more evident as the community matures and the cost of maintaining infrastructure and providing services increases."
School capacity is also a concern tied to continued residential growth in eastern Sussex County. In a May 2025 email to Planning & Zoning, Jason Hale of the Cape Henlopen School District said this development and others present ongoing challenges for local schools.
"We are currently operating at or near capacity across many of our school facilities and are facing increasing difficulty in maintaining sufficient space and services for our students," Hale wrote. "Given these conditions, we respectfully recommend that no further residential development be approved unless and until a school construction impact fee or Voluntary School Assessment (VSA) is implemented."
Totem Farms grew and sold organic produce for years off Cave Neck Road.
Totem farms provided organic produce for the region before closing years ago.
The Planning & Zoning Commission will review the application, hear public comment and consider recommendations before any final action.




