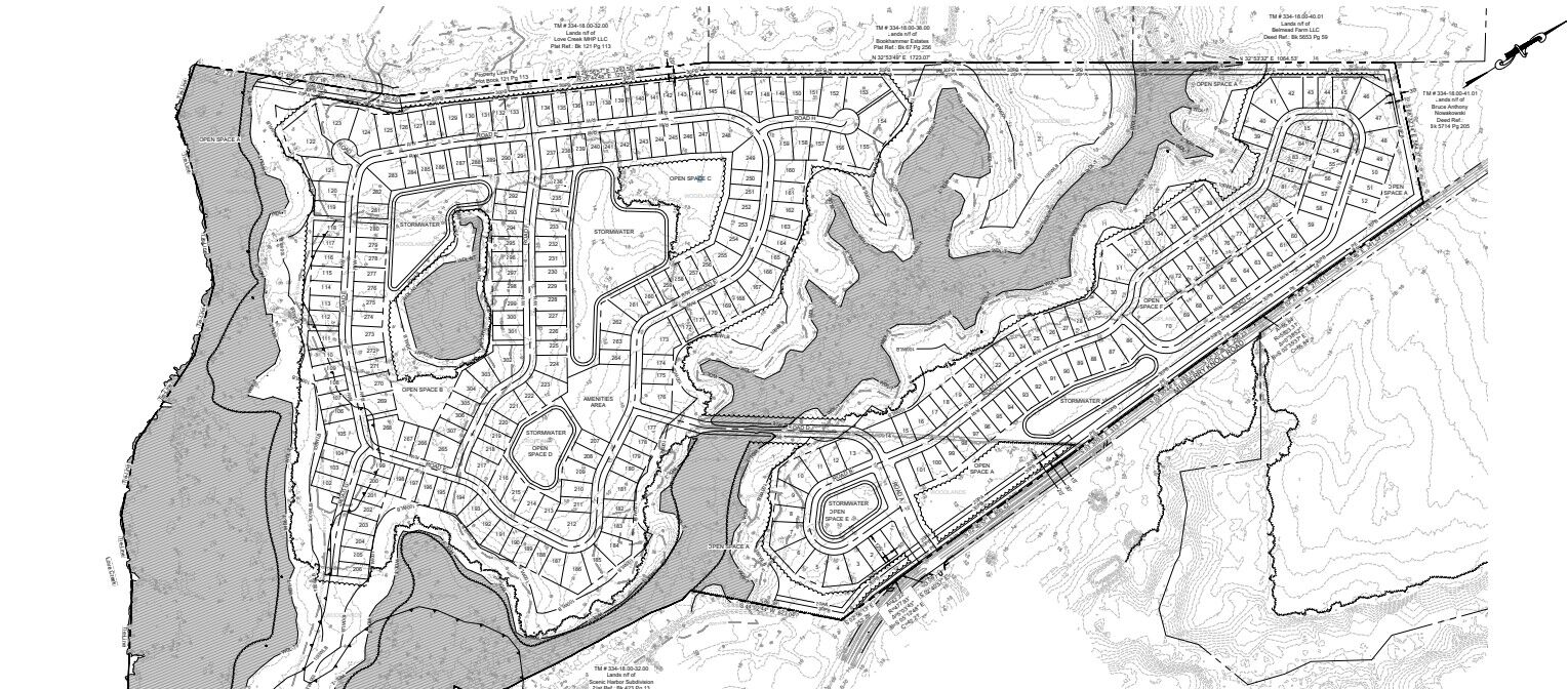
LEWES, Del. - A stretch of farmland west of Mulberry Knoll Road could soon look very different. Plans for what’s being called Goldsboro Farm would transform 257 acres into a neighborhood with 307 single-family homes.
Developers say the project would preserve about 174 acres as open space, leaving roughly 80 acres of forest on the property. State filings show about 55 acres of trees would need to be cleared to make way for the subdivision.
Residents living nearby say it’s the latest in a wave of growth that’s pushing infrastructure to its limits. Robin Delgado, who lives less than a mile from the site, said the area is already surrounded by major proposals including a new Costco less than half a mile away and the Belmead property, which could include shops and businesses bordering Goldsboro Farm.
"Then you compound it with the issues of Belle Meade. So at some point there needs to be a pause," Delgado said.
Tracy Denton, who lives just minutes from the planned development, said roads in the area are already strained.
"I think the development is outpacing our ability here in Sussex County to build infrastructure," Denton said. "We need better infrastructure before we add more homes."
Traffic estimates show the neighborhood could generate about 3,000 vehicle trips per day once completed.(PLUS)
Unlike the controversial Atlantic Fields shopping center proposed farther down Mulberry Knoll Road, Goldsboro Farm does not require a zoning change. But traffic estimates show the neighborhood could generate about 3,000 vehicle trips per day once completed.
The proposal will be reviewed by the state’s Preliminary Land Use Service on Wednesday, Oct. 29, where agencies will provide input before the plan advances to Sussex County for further consideration.
ROUTE 24 DEVELOPMENT
Delgado said she wants local leaders to take a step back and reexamine the pace of growth. "At some point there needs to be a pause," she said. "Council needs to step back and say, what is reasonable, what is appropriate."
She also expressed frustration about feeling unheard at recent public meetings. "I felt as if I was silenced by Holly Wingate when the comment was, 'I don’t want to hear any more about traffic,' she said. "But how can we not hear any more about traffic when traffic is the issue?"
Delgado's presentation is here.
CoastTV also spoke to people that live in the Belle Terre development who said they feel they are being silenced by their HOA and that not everyone in their community is against growth in the area.
Robin Delgado says she didn’t fully realize the scale of development in the area until she moved to Sussex County four years ago. "When I moved here four years ago, I really didn't understand how much over development there was and how they have allowed over development to outpace the building of the infrastructure," she said.
She describes Mulberry Knoll Road as a very narrow, two-lane route. "It's not even wide enough for a bike or a pedestrian to safely pass. Yet they're going to build a humongous shopping district at the end of this road," Delgado added.
She worries about traffic, noting, "What good is a great shopping mall with good stores that we want to go to. If you can't get to it, right? We're not going to teleport to the shopping mall. We have to ride on these roads to get there, and no one's going to be able to it's going to be gridlocked."
On safety for families, she said, "This mom is not going to be able to let her children go outside without fearing for their safety. So again, this is not an area where we need a shopping district. These are where families live."

