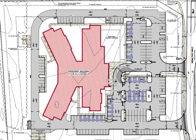
Milford, Del.- Bayhealth's Sussex Campus is getting a new facility.
The new building will be 74,000 square feet and will house PAM Health. PAM, or post-acute medical, offers treatment for inpatients, and already has a home in Bayhealth's Sussex Campus. This new facility will allow for more expansion of treatment.
Milford Mayors Archie Campbell says that this a is a great thing for the city.
"Milford is now going to be a medical mecca. We have Bayhealth, we have Nemours children's hospital, we're now going to have the rehab," he said.
"From the standpoint of medical facilities, Milford will be the place."
PAM Health already has two locations in Delaware. One is in Dover and has been open since 2019. The other is in Georgetown, and will open this October.
Groundbreaking for the new facility will take place this October. Construction is expected to take around sixteen months.
