MILTON, Del. - A proposed subdivision to split roughly 24.27 acres into 21 single-family home lots along Burton Road is raising concerns from neighbors who say the project threatens groundwater, farmland, road safety and a family name.
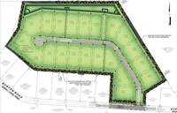
The Tepache Farms project, located at 22187 Burton Road, about a tenth of a mile west of Sand Hill Road, is zoned AR-1 for agricultural residential use. The subdivision plan was up for review by the Sussex County Planning and Zoning Commission, but a vote was deferred at the Oct. 15 meeting.
The subdivision plan was up for review by the Sussex County Planning and Zoning Commission, but was deferred at the Oct. 15 meeting. (Pennoni)
People who live near the site say they were caught off guard by the proposal and question the suitability of the land, which they describe as low-lying, saturated in the winter season and is closely connected to groundwater-fed ecosystems. So much so that a website was created opposing the project.
Ray Burton, a fifth-generation farmer whose organic operation sits near the site, said the development could spell disaster for his business.
“If this groundwater gets there, then we’ll be out of business,” said Burton, “It’ll ruin us.”
Burton also voiced concerns over the increased traffic and infrastructure strain the development could bring to Burton Road. “We’re getting trapped. Trailers, dump trucks, and it’s just breaking up,” he said. “Now he wants to put a road in here for development.”
Burton also voiced concerns over the increased traffic and infrastructure strain the development could bring to Burton Road.
Frank Payton, who farms adjacent land, said the land's history and environmental conditions were already considered when a previous 2019 application for 33 homes was unanimously denied by Sussex County’s Planning and Zoning Commission. The new plan features 21 homes, but Payton said that doesn’t solve the underlying problem.
“This soil was not suitable for septics,” said Payton. “It drains into a local clearwater stream - If this does get approved, it's going to go into the aquifer. That aquifer is going to feed this pond or the stream which eventually is going to, Wagamons Pond. Wagamons Pond is already suffering right now from excess nutrients in it and there's an invasive plant that's overgrown in that pond. This could be potentially contributing to that if it gets approved."
The new plan features 21 homes, but Payton said that doesn’t solve the underlying problem.
Payton also questioned the timing of stormwater soil testing, which was conducted during a drought in November 2024, creating what he said are conditions that may not reflect the property’s saturation levels during normal or wet seasons.
Josh Weldon, another neighbor, raised concerns with Sussex County, taking into question their goals for development and this project's alignment with them.
“If this county is looking to facilitate workforce housing and they want to incentivize it through taxpayer involvement, then why would we approve low density communities that aren't part of what the county wants to help with our workforce housing?" said Weldon.
While some development already exists along Burton Road, nearby farmers and homeowners argue that expanding deeper into wet, agricultural land threatens both the rural character of the area and the environmental integrity of nearby streams, ponds and aquifers.
Burton said he was not made aware of the use of his family's name in relation to the development until he saw the advertisement. (saveburtonroad.com)
Outside of environmental factors, Burton and his family were angered with the developer saying that the proposed development was being marketed as "Burton Meadows". Burton said he was not made aware of the use of his family's name in relation to the development until he saw the advertisement.
"I'd like to been notified before somebody goes staking my name on something. It's not a very good idea and that really put me more against it." said Burton. The website has since been taken down.
CoastTV reached out to James Grant, the property’s owner, but he declined to comment on the project. For now, the proposal remains under planning and zoning's consideration.




